|
|
Descriptions:
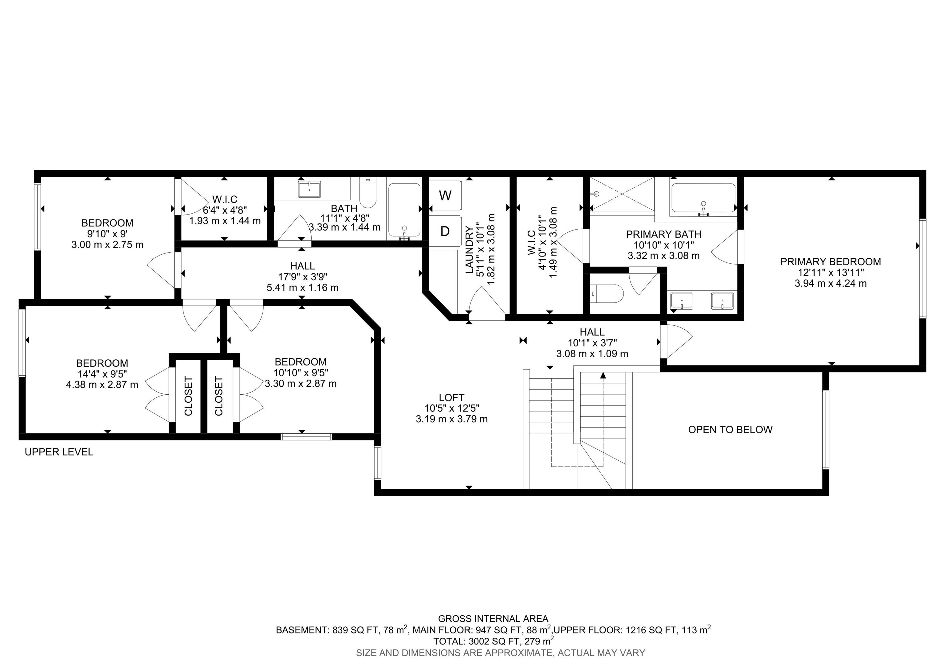
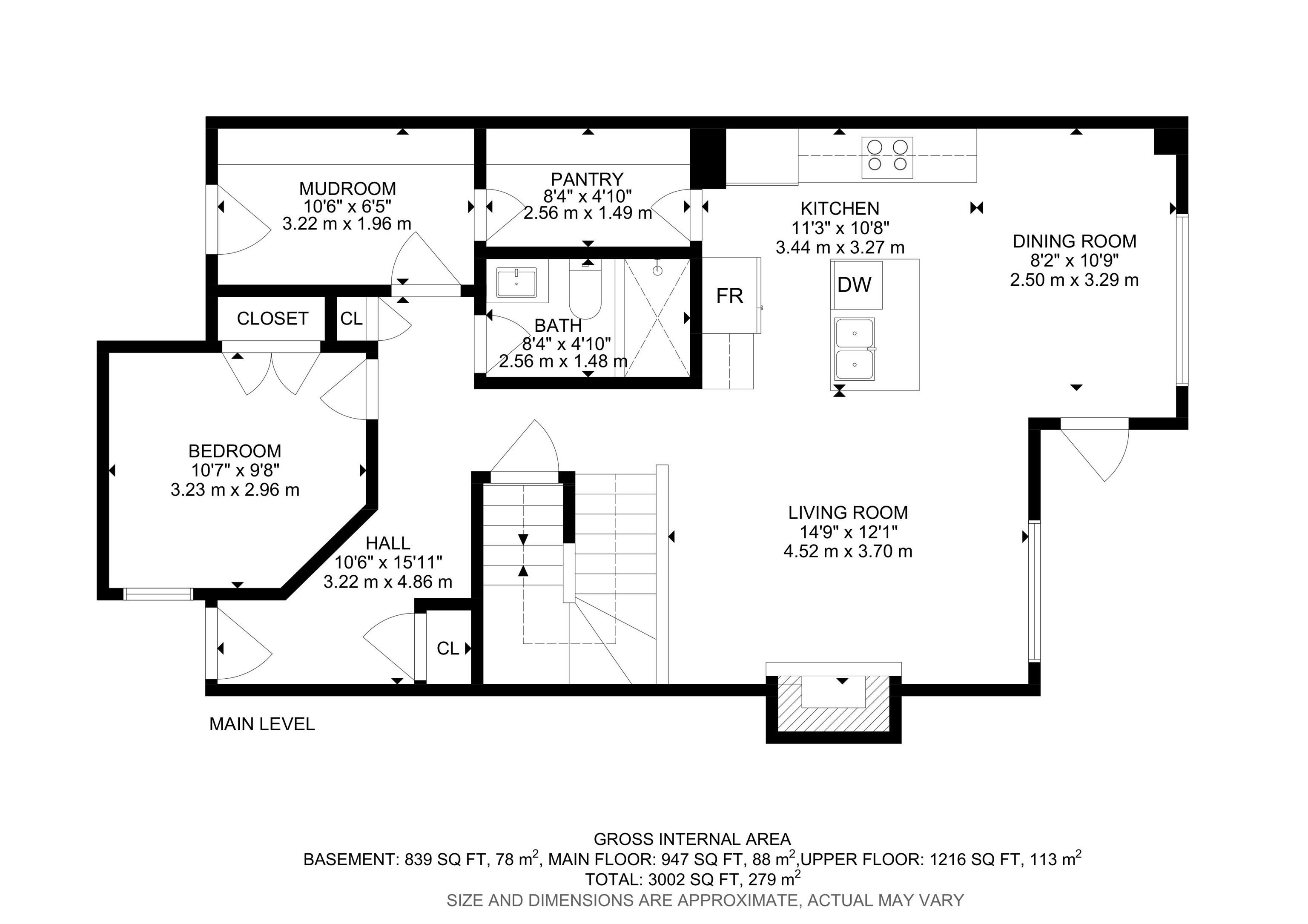
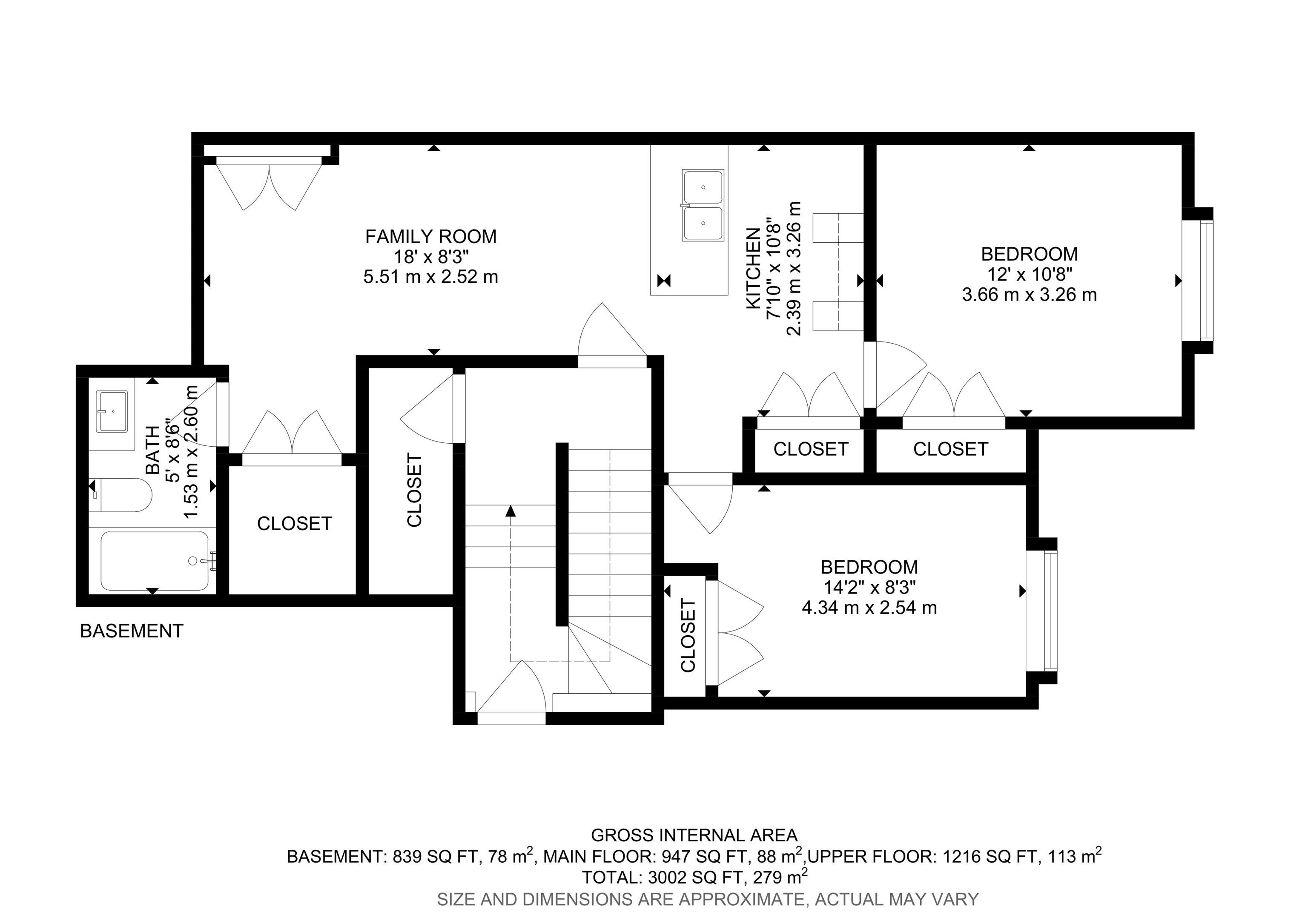
NEW BUILD WITH A LEGAL 2 BEDROOM SUITE, This beauty sits on a great street in the Uplands and offers A FULL APPLIANCE PACKAGE AND ALL WINDOW COVERINGS,4 bedrooms plus a main floor den, a high ceiling with open concept, and a legal 2-bedroom basement suite with a separate side entrance. With over 3,000 sq. ft. of well-planned living space, this 7-bedroom, 4 FULL bathroom home is perfect for a growing family. The main floor includes a full bathroom and a den that's ideal for guests or flexible use, while the open-to-below living room adds a bright, spacious feel next to the chef's kitchen. Upstairs, you'll find four generously sized bedrooms, including a primary with a beautiful ensuite, a bonus room, and Stunning large second-floor laundry. The basement features a fully finished legal suite that's great for rental income or extended family. Located in the desirable community of the Uplands, you'll enjoy easy access to schools, shopping, and major routes like Anthony Henday Drive for a smooth commute.
|
|
|
| Includes: |
|
Dishwasher-Built-In, Oven-Built-In, Oven-Microwave, Stove-Countertop Electric, Stove-Electric, Window Coverings, Dryer-Two, Refrigerators-Two, Washers-Two |
|
|
|
|
|
| Site Influences: |
| See Remarks |
|
| Legal Description: |
| ACCESS Legal Description |
|
| Location & Listing Info: |
| Neighbourhood: |
The Uplands
|
|
| Lot Shape: |
Rectangular |
|
|
|
|
|
| Property Info: |
|
| Property Type: |
Detached Single Family |
| Home Style: |
2 Storey |
| Year Built: |
2024 |
| Total Floor Area: |
2,164 sq. ft. |
| Front Exposure: |
East
|
|
|
|
|
|
| Exterior: |
|
| Exterior: |
See Remarks |
| Front Exposure: |
East |
| Roof: |
Asphalt Shingles |
|
|
|
|
|
|
|
|
|
|
| Rooms: |
|
| Total Bedrooms: |
7
(Bedrooms Above: 5)
|
| Bathrooms: |
Full: 4
/ Half: 0
|
| Rooms Above: |
10 |
|
|
|
|
|
| Additional Info: |
|
| Heating: |
Y |
| Basement: |
Full, Finished |
| Basement Type: |
Full, Finished |
| Floor Finish: |
Carpet, Ceramic Tile, Vinyl Plank |
| Parking: |
Double Garage Attached |
|
|
|
|
|
|
|
|
|
|
|
|
|
|
|
 |
Contact Taleb (Tom) Choucair -
13120 St. Albert Trail, Edmonton, Alberta, T5L 4P6
|
|
|
|
|
|
|
|
|
|
Copyright 2025 by the REALTORS® Association of Edmonton. All Rights Reserved. Data is deemed reliable but is not guaranteed accurate by the REALTORS® Association of Edmonton. Data was last updated November 15, 2025, 5:18 am. |
|
|
|
|
The data included on this website is deemed to be reliable, but is not guaranteed to be accurate by the REALTORS® Association of Edmonton.
MLS®, Multiple Listing Service®, and the associated logos are all registered certification marks owned by CREA and are used to identify real estate services provided by brokers and salespersons who are members of CREA. The trademarks REALTOR®, REALTORS® and the REALTOR® logo are controlled by The Canadian Real Estate Association (CREA) and identify real estate professionals who are members of CREA. Used under license.
|